Kleines – älteres HÄUSCHEN mit tollem GRUNDSTÜCK in direkter ORTSRANDLAGE!
KLEINKITZIGHOFEN – nähe BUCHLOE/LANDSBERG
Sind Sie auf der Suche nach einem gemütlichen Häuschen, keinem 08/15 GRUNDSTÜCK und einer machbaren Investition?!
Dann sollten Sie hier weiterlesen!
Freistehendes – älteres Wohnhaus mit tollem eingewachsenem Garten in ruhiger Wohnlage, Erdgeschoss + Dachgeschoss, teilunterkellert, massive Bauweise, ordentlicher – aber renovierungsbedürftiger Zustand, tolles Grundstück mit Obstbäumen und Nebengebäude, inklusive Einzel-Garage.
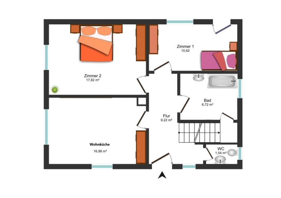
ERDGESCHOSS:
Geräumige Wohnküche mit ca.18 m², Wohnbereich mit ordentlicher Raumgröße, weiteres Zimmer, z.B. als Home-Office oder Gästezimmer, Bad sowie separates WC.
DACHGESCHOSS:
Bestehend aus 3 Schlaf-oder Kinderzimmer (jeweils mit Schrägen).
KELLER:
Teilunterkellert (ca.75 %) mit Abstell-/Vorratsräumen sowie Heizraum.
GRUNDSTÜCK:
Sonniges mit Obstbäumen, Sträuchern und Hecken eingewachsenes Grundstück (ca.1152 m²), direkt am Ortsrand, massives Nebengebäude – z.B. als Werkstatt nutzbar, Carport und große Garage (mit Grube).
Dem Baujahr entsprechender solider Gesamtzustand:
Einfache Ausstattung mit Laminatböden, Bad mit Wanne, ältere Einbauküche vorhanden.
Grundstück ggf. teilbar und weiter bebaubar.
Kleinkitzighofen, Gemeinde Lamerdingen.
Kleiner ländlicher Ort nördlich von Buchloe und westlich von Landsberg am Lech, dort ist auch die komplette Infrastruktur vorhanden. Verschiedene Einkaufsmöglichkeiten, etc. auch in Lamerdingen.
Sehr gute Bahnverbindung ab Buchloe oder Kaufering (ca.10km). Alle 30 Minuten Richtung München/Allgäu.
Günstige Verkehrsanbindung durch A96 München-Lindau und B17 Augsburg-Füssen, nach Augsburg ca.25 Autominuten, nach München ca.35 Minuten.
Hoher Freizeit-und Erholungswert, viele Rad-und Wanderwege in direkter Umgebung.
Die dargestellte Position der Immobilie ist nur eine ungefähre Angabe.