— VERMIETET — DACHGESCHOSS-WOHNUNG IN TRAUMHAFTER IDYLLE !

86946 Vilgertshofen-Issing, Wohnung zur Miete

Kontaktdaten

Objektdaten

  • Objekt-ID
    308/25/2736
  • Objekttyp
    Wohnung
  • Adresse
    86946 Vilgertshofen-Issing
  • Etage
    2
  • Zimmer
    3
  • Heizungsart
    Zentralheizung
  • Wesentlicher Energieträger
    Öl
  • Baujahr
    1974/2015
  • Verfügbar ab
    frei
  • Kaution
    1.850,00 EUR
  • Nettokaltmiete
    925,00 EUR
  • Nebenkosten
    175,00 EUR

Energieausweis

  • Energieausweistyp
    Bedarfs­ausweis
  • Baujahr lt. Energieausweis
    2015
  • Wesentlicher Energieträger
    Öl
  • Endenergie­bedarf
    134,40 kWh/(m²·a)
  • Energie­effizienz­klasse
    E

Objekt­beschreibung

Beschreibung

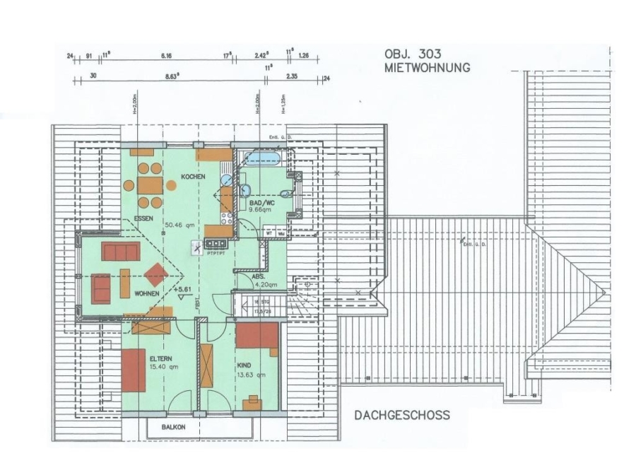
3-ZIMMER-DACHGESCHOSS-WOHNUNG in TRAUMHAFTER IDYLLE !

Helle – moderne Dachgeschoss-Wohnung mit super großzügiger Raumaufteilung, 2015 neu ausgebaut, offener Wohn-Ess-Küchenbereich mit ca. 50 m² Wfl., Schlafen und weiteres Zimmer (Kind/Büro) – jeweils mit Zugang zum Balkon, helles Bad mit Wanne (und Duschvorrichtung), Abstellraum, wunderbarer Weitblick auf Wiesen und Felder.

EXTRAS:
eigene Gartenfläche,
große Hoffläche vor dem Haus,
inkl. Kfz-Stellplatz, weiterer Kfz-Stellplatz möglich,
inkl. Staufläche, geringe Nebenkosten.
Einbauküche kann sehr günstig abgelöst werden!

Ausstattung

Neuwertiger Zustand, Bad aus 2015, Öl-Zentralheizung mit Brennwerttechnik, Kunststoff-Fenster, Laminatböden.

Einbauküche kann sehr günstig abgelöst werden!

Lage

Traumhafte Alleinlage mit direkt angrenzenden Wiesen und Feldern, Weitblick.

Issing, Ortschaft ca. 12km südlich von Landsberg und ca. 10km westlich von Dießen/Ammersee, gute Infrastruktur, Einkaufsmöglichkeiten, Kindergarten, Kinderkrippe, Grundschule, Ärzte direkt vor Ort, zur A96 München-Lindau ca. 10 Autominuten.

Die dargestellte Position der Immobilie ist nur eine ungefähre Angabe.

Direktanfrage

* Pflichtangaben
 SSL-verschlüsselt
Immobiliendaten-Import und Darstellung für WordPress: WP-ImmoMakler